Квартира, 2-кімн., Харьков, Павлово Поле, Науки пр.
2 585 000 грн
($59 000)
($59 000)
| ID | 1019067 |
| Ціна | 2 585 000 грн ($59 000) |
| Дата | 20.03.26 |
| Населений пункт | Харьков |
| Район | Павлово Поле |
| Вулиця | Науки пр. |
| Кількість кімнат | 2 |
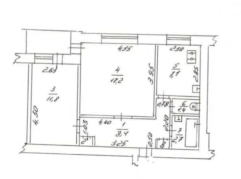
| Площа, м² | 51 |
| Площа житлова, м² | 29 |
| Площа кухні, м² | 7 |
| Поверх | 8 |
| Поверхів буд | 9 |
| К-ть балконів | 1 |
| Стан | кап. ремонт |
| Матеріал стін | кирп |
Cрочно продам 2 комнатную изолированную квартиру на Павловом поле. Теплый кирпичный дом. 8/9.
Квартира с капитальным ремонтом.51/29/7. Комнаты раздельные. Столярка - дерево, в кухне металлопластиковое окно. Санузел раздельный. Встроенная кухня и шкаф купе в коридоре в подарок. Остальная мебель и техника по договоренности.
Хорошим людям- торг.